SOLD
Cambridge
4
1
N/A
110sqm
824sqm
Cambridge
proudly marketed by
Cambridge Real Estate MREINZ
Dallas a Sleepy Cul-de-sac
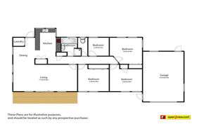
Which option for you.......... a first home buyer, a rental return or down size for the simple life. Dallas Place can deliver, a great quiet cul-de-sac with a good size 824m2 section. Three double bedrooms and one single, good open plan dining and living and excellent kitchen size complete this 110m2 home, along with a separate single garage. Great options for the first step into home ownership or either for rental investment. Make your own mark on this home to get capital gain in the future. Properties in this price range are hard to find so don't hesitate and give Greg or Raewyn a call.
Question
Please leave this field blank:
Upload by Jason Tregurtha
Waikato South